190 W Four Feathers

Benson, AZ 85602
  • $299,999

    Price
  • 3

    Bed
  • 2

    Bath
  • 1,492

    SqFt

About the Listing 391901 - 53921

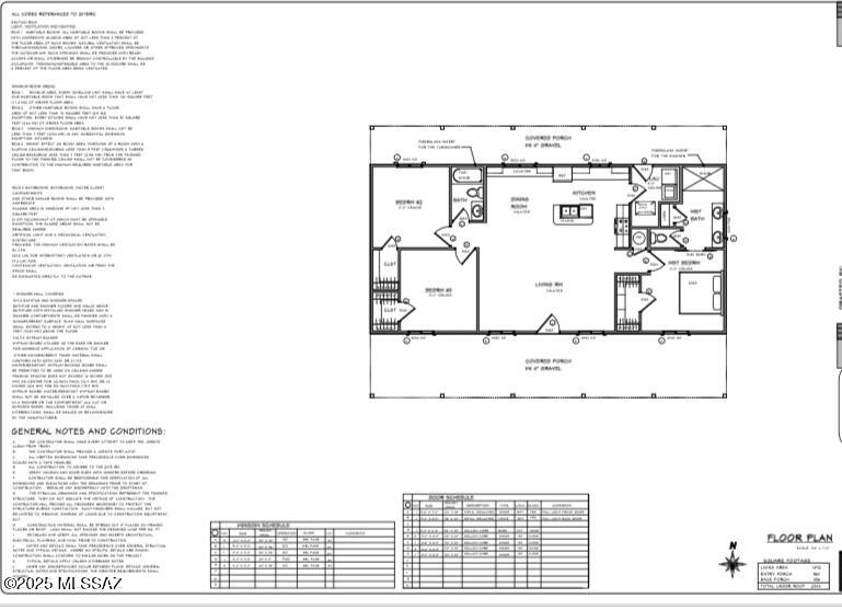
Affordable new construction with custom style on a spacious 1-acre lot! This 3 bed, 2 bath home features an open floor plan, durable metal roof with option to customize and 1492sqft of well-designed living space. Base price includes the home only - porches or a carport can be added to suit your needs. Multiple lots available with no HOA, offering flexibility and room to personalize. A rare opportunity to own a quality new build with the freedom to make it yours!

Listing Highlights

Status Active
Days on Site 270
Property Type Residential
MLS ® 22519920
Year Built 2025
Total Square Footage 1,492
Lot/Acreage 1
County Cochise
Neighborhood N/A
School District Benson
Elementary School Benson
Middle School Benson
High School Benson

Interior Details

  • Bedrooms: 3
  • Bathrooms: 2 Full
  • Appliances:
  • Air Cond: Ceiling Fans,Central Air
  • Heating: Electric
  • Fireplaces: 0
  • Floor: Concrete
  • Above Ground Sq Ft:
  • Below Ground Sq Ft: n/a
  • Basement: No
  • Other: Double Vanity,Shower Only,Dishwasher,Disposal,Electric Range,Kitchen Island,Microwave,Refrigerator,Great Room,No Interior Steps
  • Water: Shared Well

Exterior Details

  • Lot Description: North/South Exposure,Yes - By Zoning,No Pool
  • Garage Capacity: N/A
  • Parking Spaces: 0
  • Lot Dimensions: TBD
  • Zoning: Cochise - R-36
  • Roof: Metal
  • Others:
  • Sewer: Septic

Financial Details

  • Tax Amount: $515
  • Taxes w/Assessments: N/A
  • Tax/Property ID: 123-09-016K
  • Tax Year: 2023

Payment Calculator

Monthly Payment

  • in Principal and Interest
  • in Taxes
Years
% Down Payment
% Mortgage Rate

Questions About..

190 W Four Feathers Benson, AZ 85602

This site is protected by reCAPTCHA and the Google Privacy Policy and Terms of Service apply.

Never Miss A New Property

Get notified any time there's a new home on the market in this neighborhood!

Don't worry! We'll never spam you or sell your details. You can unsubscribe whenever you'd like.

|

home

Are you buying or selling a home?

Buying
Selling
Both
home

When are you planning on buying a new home?

1-3 Mo
3-6 Mo
6+ Mo
home

Are you pre-approved for a mortgage?

Yes
No
Using Cash
home

Would you like to schedule a consultation now?

Yes
No

When would you like us to call?

Thanks! We’ll give you a call as soon as possible.

home

When are you planning on selling your home?

1-3 Mo
3-6 Mo
6+ Mo

Would you like to schedule a consultation or see your home value?

Schedule Consultation
My Home Value

or another way